タイトルは家ですが、
新築の事業用系の事務所募集となります
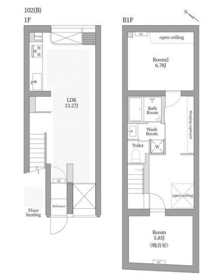
さて画像をご覧頂きますと壁と天井が
コンクリートの打ち放しになっており、
しかも お部屋の所在階が地下と1階の
メゾネットという事もあってか
普通に文字情報のみ聞いただけだと
冷たいコンクリの箱が
地下と1階にあるメゾネットで
どちらかというと冷たくて暗ーい空間
というイメージを持つのも
無理はありません
ただし本日ご紹介の物件は
このイメージを大きく裏切ります。
地下なのにとっても明るい南西の陽ざしが
燦燦と差し込んできます
1階の南西側には天井いっぱいまでの
大きな窓があって、窓の外のお隣は
何と!平屋なんです
そう、奇跡的にも 窓からは平屋の
屋根と青空が見えている状態。
なのでそこを吹き抜けにすることによって
明るい陽ざしはしっかり地下まで到達。
さすがに個室は陽が届きませんが
事業用系での利用を考えると
ミーティングや契約業務、商談など
しっとり落ち着いた光のない部屋も
あるに越したことはありません
更に地下吸音室もあるとの事で
多少の騒音なら大丈夫そうです
音楽編集等、音の出やすい業務の
会社さんは是非!ご検討を!

東京メトロ丸ノ内線 茗荷谷 徒歩6分
賃料 327,800円
管理共 16,500円
面積67.53㎡
礼金1カ月/保証金2カ月
RC3階建 地下1階/複数階 B1階~1階部分
築年 2026年02月
入居日 即時
<備考>
保険加入要 / 2年間 22,000円
保証会社加入要
24時間サポート登録料:22,000円
東京メトロ有楽町線 江戸川橋 徒歩19分
都営三田線 白山 徒歩19分





























