延床は約360平米、
100坪を優に超える築60年
鉄骨造2階建ての建物。
1階はまさにザ・工場と呼ぶに
ふさわしいギャングのアジトのような
ハードボイルドな空間です
空間は主に2つに仕切られていて
約6メートルを誇る天高の開放空間と
クレーンが縦横隅々に行き渡る
天高約4メートルの空間が
隣り合わせに連なります
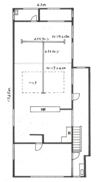
チェッカープレートの直線階段を
上った2階も一部屋を除けば
クレーン設備のある工場仕様
となっており、
真中にある鋼板ハッチをはずせば
下階と荷物のやり取りが出来る
様になっています
因みに前のテナントさんは
金型プレス加工業者さんでした。
きっとこのハッチを使って
荷卸しや機械の搬出入を
行っていたんでしょう
賃料99万となりますが
何をやるかはアナタ次第。
色々妄想を膨らませて
ハードボイルドな世界を
完成させていただければ幸いです。


京成押上線 四ツ木 徒歩9分
賃料990,000円
管理共 円
面積360㎡
礼金1カ月/敷金5カ月
鉄骨造2階建
築年1965年01月
入居日 相談
<備考>
バイク置場有 無料
駐輪場有 無料
2階床補強箇所あり
エアコン残置物あり
1階クレーン1.5t 3機有り
2階クレーン0.5t 2機有り
前入居者 金型プレス加工





























