築10年超えながらも
スタイリッシュなエントランスが
印象的なブラックフェイスの
デザインハウスのご紹介
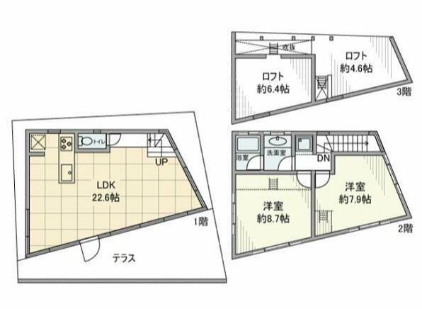
76平米の2LDKは室内も
とってもスタイリッシュ。
画像の一本桁デザイン階段や
エアコン隠蔽ルーバー、
AVテレビ用ボードなど
細部にこだわったモダンな空間に
仕上がっております。
特に
キッチンは料理好きサンも注目です
ワイドなカウンターは
ダイニングテーブルだけでなく
調理スペースとしても使えて、
二人で料理するのもラクチン!
更にキッチン背面には収納たっぷりな
バックヤードがあるので調理器具から
食器類、見せたくないキッチン用品も
すっきり収まります。
また2階洋室の上部はロフトに
なっていて収納力もバツグン。
約23畳のLDKなら
友人を招いた食事会も楽しめそう♪
お料理好きのお二人さん
ピンときたら是非内覧をどぞ!

東急多摩川線 鵜の木 徒歩3分
賃料200,000円
管理共 円
面積75.98㎡
礼金1カ月/敷金2カ月
木造2階建
築年2014年05月
入居日 相談
<備考>
保険加入要/ 2年間 25,000円
保証会社加入要
東急池上線 久が原 徒歩9分
駐車場登録料 1台(利用時のみ):11,000円、
除菌施工料(契約時のみ):19,800円
リロサポ加入必須:1,500円/月
事務所使用不可
喫煙不可
ルームシェア不可
2027年7月31日迄/6ヶ月未満で解約した場合、賃料の0.5ヶ月分を申受けます。



















