ここは新しいカルチャーやファッションの
中心を担う渋谷区神宮前。
渋谷と原宿を繋ぐ明治通りに面したエリアは
古ビルが徐々に建替えられ、新しいビルに
置き換わっていく中で
1980年生まれのレトロな趣きと
煉瓦タイルの落ち着いた風格の外観、
そしてワンフロア1テナントで明治通りの
大きな開口を独占できる今回の建物は
とても希少な存在に感じます
1階にはオシャレなセレクト帽子のショップ
がテナントインするこの建物。
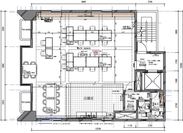
今回募集は5階で前入居者の居抜きの空間となってます。
明治通り側には大きな開口部があり
明治通りを常に見下ろすことができ、2つのバルコニー
からは並木の緑や青い空も楽しむことができます。
気になる内装ですが、さすがは神宮前。
現況のままでも十分使えそうなイマドキな
デザインオフィス仕様になっております。
躯体剥きだしの3m弱のマッシロ天高天井、
クリア塗装のモルタルの床と白で塗装をした壁。
天井はスポット用のダクトレールが幾重にも連なって、
どこでもスポットライトを取付け照らすことが出来ます。
更に壁面にはウッディな本棚と収納が一面造作されてたり、
薄いグレー壁の会議室も別区画で設置されていて、
トイレと洗面も2箇所あったり、
使い勝手も充分良さそうです。
ポテンシャルの高い大開口のある空間で
日々神宮前を感じながらシゴトをしたい方は是非!!


東京メトロ副都心線 明治神宮前 徒歩6分
賃料858,000円
管理共 5,000円
面積116.00㎡
礼金1.1カ月/保証金6カ月
SRC8階建/5階部分
築年1980年04月
入居日 相談
<備考>
保険加入要/ 2年間 18,000円
保証会社加入要
東京メトロ半蔵門線 渋谷 徒歩9分
JR山手線 原宿 徒歩12分
天井高:2.9m
1フロア1テナント
飲食店不可



















